Нова луксозна сграда в строеж, последният тристаен апартамент.
Агенция „Артисстрой" /www.artisstroy.com/ предлага: тристаен просторен с площ 80 кв.м на ет.2 от общо 5 в строеж и Акт 16 май на 2025г в кв.Оборище.
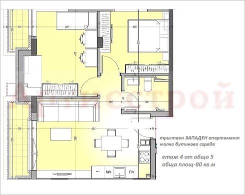
Разпределение: антре, дневна, с отворен кухненски бокс, 2 спални, баня с тоалетна, 2 тераси. Отопление: централно ТЕЦ. Изложение: запад,север.
В малка бутикова сграда със само седем апартамента, по два апартамента на етаж.
Сградата се изгражда с висококачествени материали, тухли Винербергер, иновативна пет камерна дограма, с троен стъклопакет и нискоемисионо стъкло от двете страни. Стилна фасада с класическа градска архитектура. Френски прозорци. Качествена дограма с немски петкамерен профил. Високо-енергийни и ниско-емисионни стъкла. Голям и безшумен асансьор. Красиви, здрави и сигурни външни врати. Представителни общи части с модерни миещи се вътрешни мазилки в топли цветове и настилки по стълбища и коридори от естествен гранит. Материали, осигуряващи лесна поддръжка, дълговечност и чувство за уют в дома.
Локация: централната градска част на София, между два от основните централни столични булеварди – „Васил Левски” и „Ген. Данаил Николаев”. Близо до сградата се намира голяма и богато озеленена градина с много уреди за забавление на деца и възрастни.
Районът е предпочитан за живеене от млади и платежоспособни хора, поради централното му местоположение, близостта на всякакви комуникации и градски удобства, като същевременно е тихо и озеленено място. Наоколо е застроено с нови модерни жилищни сгради.
Агенцията ОСИГУРЯВА БЕЗПЛАТНО СЪДЕЙСТВИЕ ПРИ ИПОТЕЧНИ БАНКОВИ КРЕДИТИ. Всички довършителни ремонти, освежаване. Оферта No 1021890
Други предложения за ново строителство на: ново строителство тристайни апартаменти














